Zutphenseweg 2c

7245 BL Laren
€ 595.000,- k.k.
  • 109 m2
  • 162 m2
Beschikbaar
Laren – Zutphenseweg 2c
Laren – Zutphenseweg 2c
Laren – Zutphenseweg 2c
Ik wil graag bezichtigen.
Afspraak maken

Omschrijving

Planning oplevering april 2026.

RUTGERSHOF IN LAREN (GLD)
Op zoek naar uw levensloopbestendige woning in het bruisende centrum van Laren, Gelderland? We hebben goed nieuws voor u! Ontdek nu deze unieke nieuwbouwwoning met een slaapkamer en badkamer op de begane grond.

Aan de entree van het kleinschalige nieuwbouwplan "Rutgershof" worden vier levensloopbestendige woningen gebouwd. Het zijn woningen gemaakt voor optimaal comfort en zorgeloos wonen De zonligging is prima en de achtertuin is buitenom bereikbaar vanaf de voorzijde.

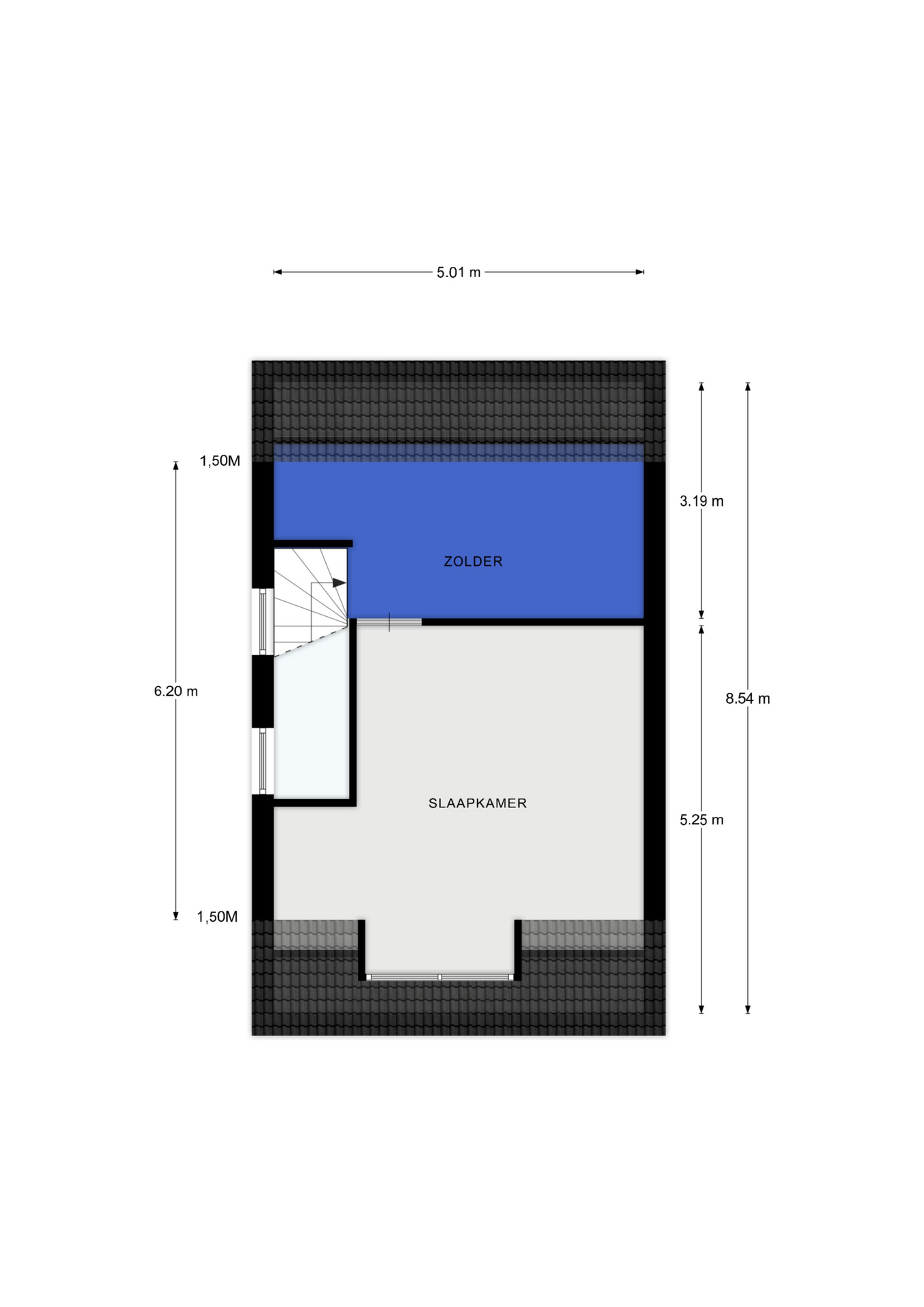
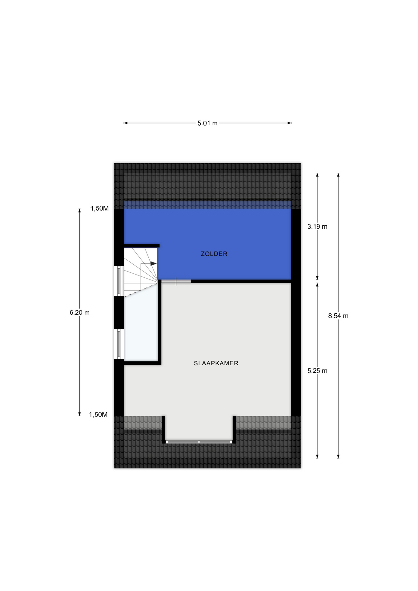
Deze levensloopbestendige woning heeft een zeer comfortabele indeling. Alle woonfuncties, waaronder ook de slaap- en badkamer, bevinden zich op de begane grond. Naast uw complete woonprogramma op de begane grond heeft u nog een royale overloop en slaapkamer op de verdieping.

- Slapen en baden begane grond;
- Woonoppervlak circa 109 m²;
- Extra slaapkamer op de verdieping;
- Inclusief zonnepanelen;
- Vloerverwarming gehele woning;
- Inclusief luxe keuken met inbouwapparatuur;
- Inclusief hoogwaardig sanitair en tegelwerk;
- Luxe uitgevoerde binnendeuren;
- In centrum gelegen;
- Met Woningborg Garantie- en Waarborgregeling;
- Voldoende parkeergelegenheid voor de woning.

Koopsom: € 595.000,- k.k. (over een gedeelte van de koopsom is 2% overdrachtsbelasting verschuldigd.

LOCATIE
Laren is een prachtig dorp in de gemeente Lochem en is een rustige en vriendelijke plaats om te wonen, met veel groen en natuur in de omgeving. Er zijn diverse recreatie- en sportfaciliteiten, zoals een zwembad, tennisbanen en een golfbaan. Het dorp Laren is een ondernemend dorp met vele voorzieningen zoals diverse winkels, supermarkten, openbaar vervoer en maar ook vele gezellig, culturele en sportieve evenementen.

Kenmerken

Overdracht
  • € 595.000,- k.k.
  • Beschikbaar
  • In overleg
Oppervlakte & inhoud
  • 109 m2
  • 415 m3
  • 162 m2
  • West
Bouw
  • Woonruimte
  • Nieuwbouw
  • 2025
Indeling
  • 3
  • 2
  • Mechanische ventilatie, Zonnepanelen
© 2026 Bieze Makelaars & Taxateurs | Algemene voorwaarden | Disclaimer | Privacy verklaring | Grafisch ontwerp VRMGVR | Technische realisatie Sieronline B.V.