Gruttersdreef 207

7328 DP Apeldoorn
€ 450.000,- k.k.
  • 136 m2
  • 154 m2
  • A
Beschikbaar
play-sharp-fill
Apeldoorn – Gruttersdreef 207
Apeldoorn – Gruttersdreef 207
Ik wil graag bezichtigen.
Afspraak maken

Omschrijving

Ruime en energiezuinige en onderhoudsvriendelijke gezinswoning met 6 slaapkamers in kindvriendelijke wijk

Bent u op zoek naar een instapklare en onderhoudsvriendelijke woning die ruimte biedt voor het hele gezin? Dan is deze keurig verzorgde woning precies wat u zoekt!

Deze royale eengezinswoning beschikt over maar liefst 6 slaapkamers en 2 badkamers, ideaal voor grote gezinnen, samengestelde gezinnen of om comfortabel wonen te combineren met een kantoor of hobbyruimte aan huis. In 2018 is de tweede verdieping professioneel opgebouwd, waardoor er extra leefruimte is ontstaan zonder concessies te doen aan comfort of uitstraling.

De woning is volledig geïsoleerd en voorzien van energielabel A, wat zorgt voor lage energielasten en een prettig binnenklimaat. Dankzij de kunststof kozijnen met screens en rolluiken is het onderhoud minimaal en het wooncomfort maximaal.

Gelegen in een kindvriendelijke en rustige woonomgeving, met scholen, speeltuinen en voorzieningen op korte afstand. Een ideale plek waar kinderen veilig buiten kunnen spelen en u kunt genieten van rust en ruimte.


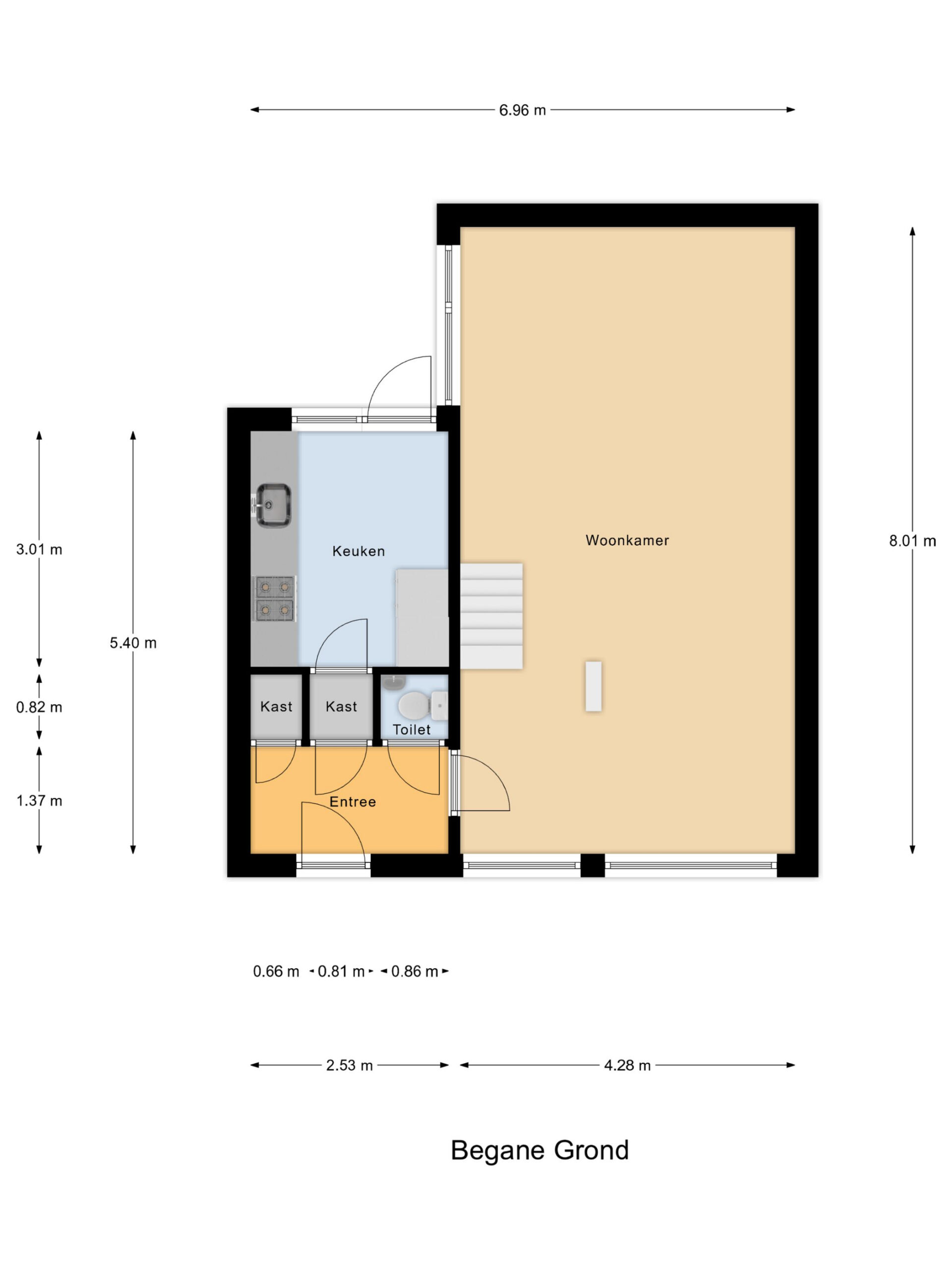
Indeling
Begane grond: Entree, hal, bergkast en toiletruimte. Speelse lichte woonkamer met grote raampartijen (kunststofkozijnen) en voorzien van vloerverwarming met een click PVC-vloer. De open trap naar de 1e verdieping geeft een mooi ruimtelijk effect. Tuindeur naar terras en achtertuin. Half-open keuken met diverse inbouwapparatuur.
Verzorgde achtertuin met stenen berging en achterom. tuin is besloten wat zorgt voor de nodige privacy.

1e verdieping: Overloop met inloopkast en 3 prima slaapkamers waarvan de ouderslaapkamer is voorzien van een vaste kastenwand. Geheel betegelde badkamer met bad/douche combinatie, wastafelmeubel, 2e toilet en aansluiting voor de wasmachine.


2e Verdieping: Overloop met eveneens een drietal slaap/werk- of hobbykamers en een praktische 2e badkamer met doucheruimte en wastafelmeubel.


Kortom: een perfecte gezinswoning waar u zó in kunt! Maak snel een afspraak voor een bezichtiging en laat u verrassen door de ruimte en het comfort dat deze woning te bieden heeft.


Pluspunten:
* Volledig geïsoleerd energielabel A
* Begane grond voorzien van vloerverwarming
* 2e verdieping opgebouwd in 2018
* 6 slaapkamers en 2 badkamers
* 2018 de woning voorzien van kunststofkozijnen met HR++ glas
* Gevels na geïsoleerd met Supearl EPS parels
* 12 Zonnepanelen (400 Wp per zonnepaneel)


Algemeen:
* Bouwjaar: 1974
* Woonoppervlakte: 136 m²
* Inhoud: 479 m²
* Perceeloppervlakte: 154 m²


Aanvaarding: in overleg


Interesse in dit huis? Schakel direct uw eigen NVM aankoopmakelaar in.
Uw NVM aankoopmakelaar komt op voor uw belang en bespaart u tijd, geld en zorgen.
Adressen van collega NVM kantoren vindt u op Funda.nl

Kenmerken

Overdracht
  • € 450.000,- k.k.
  • Beschikbaar
  • In overleg
Oppervlakte & inhoud
  • 136 m2
  • 479 m3
  • 154 m2
  • Oost
Bouw
  • Woonruimte
  • Bestaande bouw
  • A
  • 1974
Indeling
  • 7
  • 6
  • Mechanische ventilatie, Rolluiken, Glasvezel kabel, Zonnepanelen
© 2026 Bieze Makelaars & Taxateurs | Algemene voorwaarden | Disclaimer | Privacy verklaring | Grafisch ontwerp VRMGVR | Technische realisatie Sieronline B.V.